Michałowice

Sold: Michałowice

295 m²

1508 m²

6 rooms

2020

House 295 m² | Plot 1508 m² | 6 rooms | 2 bathrooms + toilet | Garage for 2 cars | Photovoltaic installation (16kW) and heat pump

An exclusive, modernist single-family house with a minimalist shape, distinguished by modern architecture and the highest standard of finish. A well-thought-out spatial layout, panoramic glazing and advanced energy-saving technologies mean that the property will meet the expectations of the most demanding.

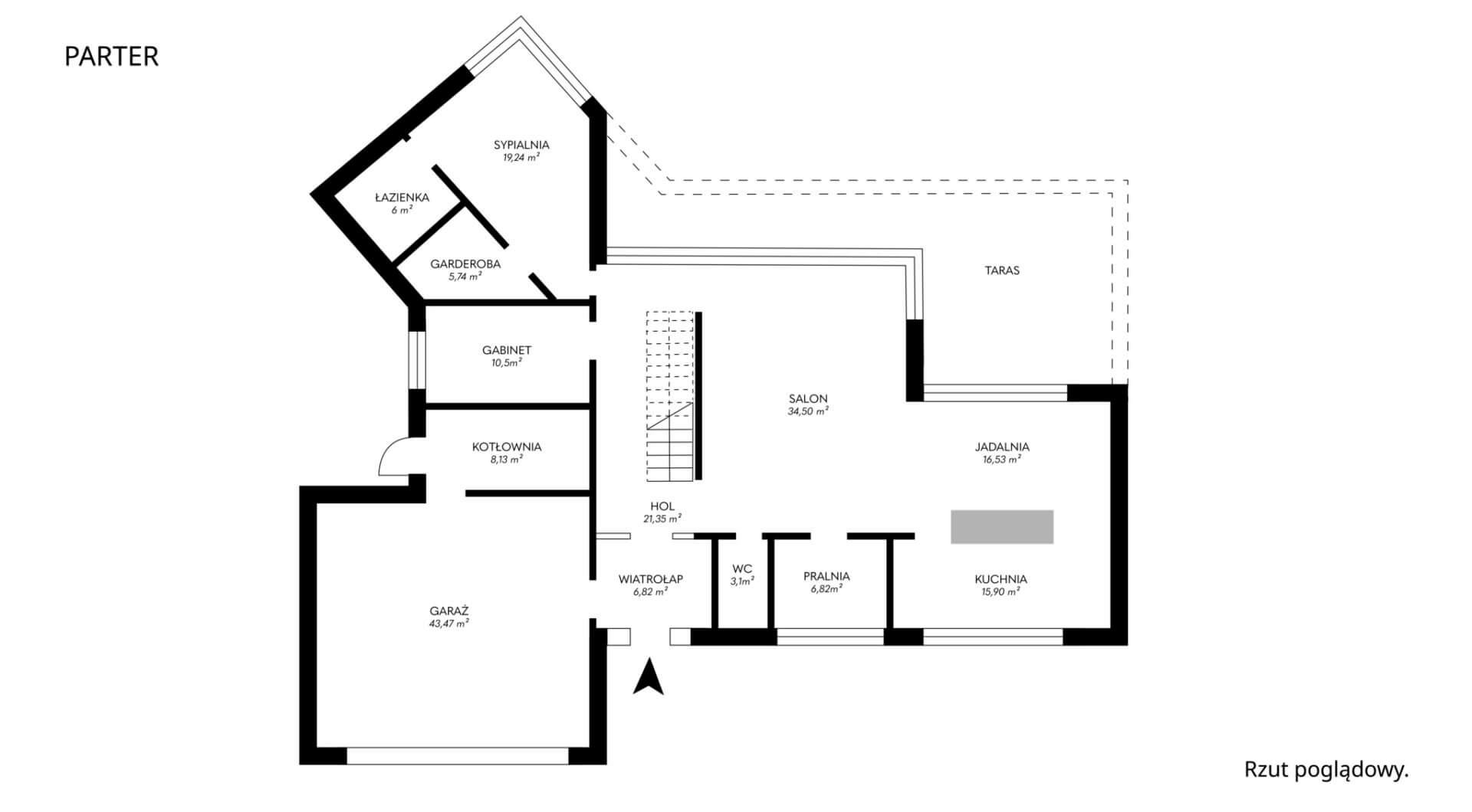
ROOM LAYOUT

GROUND FLOOR – A SPACE OF COMFORT AND DESIGNER SOLUTIONS

  • Living room (34.60 m²) – the heart of the house with a view of the garden, an elegant suspended fireplace with a glass firebox, a comfortable lounge area in bright colors, modern ceiling lighting.
  • Kitchen (15.90 m²) – stylish, open to the dining room, built-in in contrasting black and natural wood, large kitchen island with cooking space.
  • Dining room (16.53 m²) – spacious, with an elegant wooden table for 8 people, designer hanging lamps.
  • Master bedroom (19.24 m²) – with access to the garden, huge corner windows, comfortable bed and a warm colour palette.
  • Wardrobe (5.74 m²) – dedicated storage space.
  • Bathroom (6.00 m²) – modern, bright interior, designer fittings.
  • Office (10.50 m²) – ideal for remote work, can be adapted to a guest room.
  • Laundry room (6.82 m²) – functional, lit with natural light.
  • Guest toilet (3.10 m²).

FIRST FLOOR – RELAXATION AND INTIMACY ZONE

  • Bedroom 1 (19.00 m²) – spacious, with large windows and a view of the garden.
  • Bedroom 2 (21.60 m²) – modern design, can be arranged as a children’s or guest room.
  • Gym/extra bedroom (30.76 m²) – space for exercise or can be converted into another bedroom.
  • Bathroom (8.55 m²) – modern, with a large bathtub and walk-in shower.

FINISHING STANDARD

The house is finished using the highest quality materials. Ceramic blocks provide excellent insulation, and aluminum panoramic glazing guarantees maximum interior lighting. The living room has a modern two-sided fireplace, which adds a unique atmosphere.
On the floors natural wood and large format tiles, underfloor heating in the bathrooms. Oak suspended stairs give the interior lightness and elegance.
The building is equipped with a photovoltaic installation (16 kWh), a heat pump, and optional gas heating. Air conditioning provides thermal comfort in the summer, and the recuperation system takes care of the air quality inside.

SURROUNDINGS AND LOCATION

Michałowice is a prestigious, green area that offers peace and privacy while also providing quick access to Warsaw. The modern shape of the building fits in perfectly with the well-kept garden, which was designed with relaxation in mind – a spacious terrace, stylish garden furniture and a pergola make it an ideal place to relax.
The intimate surroundings are conducive to everyday outdoor activities, and the proximity of communication routes allows for a convenient connection to the city center.

Plans
property

295 m²

1508 m²

6 rooms

2020

Localization

Similar offers

Contact form

DO YOU HAVE QUESTIONS FOR US? PLEASE FILL OUT THE FORM BELOW AND WE WILL TRY TO CONTACT YOU AS SOON AS WE CAN.