Warszawa, Wilanów

Dom wolnostojący z dostępem do jeziora w Wilanowie

547 m²

993 m²

8 pok.

2025

Wyjątkowy, wolnostojący dom zlokalizowany w Wilanowie, malowniczo położony nad brzegiem Jeziora Wilanowskiego i posadowiony na działce bezpośrednio graniczącej z Parkiem Wilanowskim. To nieruchomość, w której luksus definiuje nie tylko architektura, ale przede wszystkim rzadkie połączenie: prywatność, otwarcie na zieleń i pełna funkcjonalność miejskiego życia. Dom znajduje się w drugiej linii zabudowy, co realnie eliminuje hałas i ruch, zapewniając ciszę i poczucie odseparowania. Ogromne przeszklenia od strony parku tworzą efekt żywego obrazu – wnętrza pracują światłem i krajobrazem przez cały dzień. Projekt wnętrz przygotowało Studio Casciarri, natomiast architekturę elewacji i zagospodarowanie otoczenia zaprojektowało studio Moomoo – z wyraźnym naciskiem na ponadczasowość i spójność formy.

ROZKŁAD POMIESZCZEŃ I WNĘTRZA
Dom o powierzchni 547 m² usytuowany jest na działce o powierzchni 993 m². Układ funkcjonalny został zaprojektowany w sposób bardzo świadomy – strefa dzienna otwiera się na zieleń i jezioro, natomiast kondygnacje prywatne zapewniają komfort, ciszę i logiczny podział przestrzeni dla domowników i gości. Przeszklenia w aluminiowej, trzyszybowej stolarce nie tylko podkreślają widok, ale również zapewniają wysoki komfort termiczny i akustyczny.
Standard techniczny domu odpowiada oczekiwaniom najbardziej wymagających klientów. W całym domu wykonano ogrzewanie podłogowe oraz system rekuperacji z odzyskiem ciepła, zapewniający stałą jakość powietrza i stabilny komfort temperaturowy, szczególnie istotny przy dużych przeszkleniach. Instalacje przygotowane są pod klimatyzację oraz rozbudowany system inteligentnego domu. Zastosowano nowoczesny system ogrzewania, w którym pompa ciepła stanowi główne źródło ciepła, natomiast kocioł gazowy Viessmann pełni funkcję źródła alternatywnego.

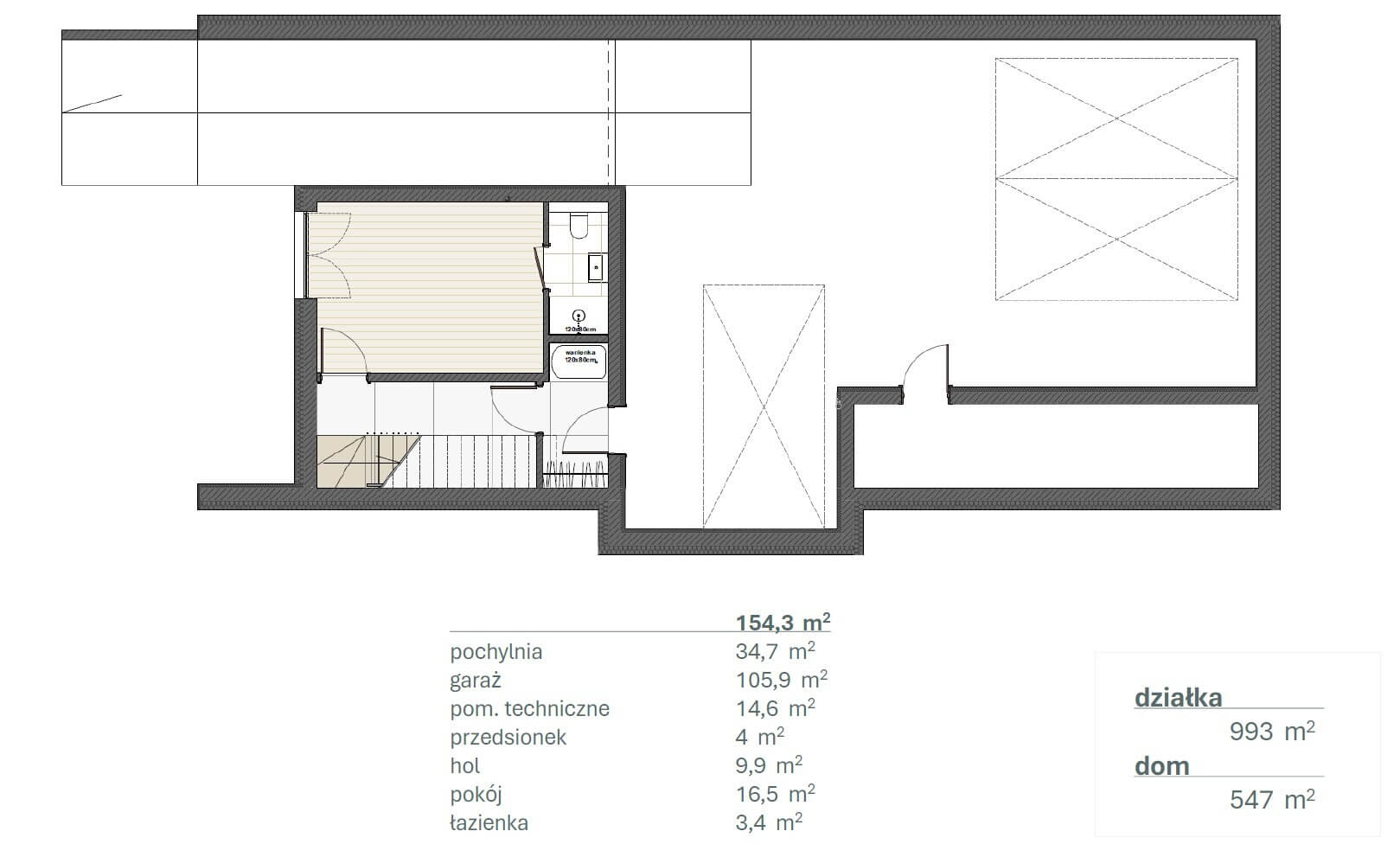
POZIOM -1 (154,3 m²) – STREFA GARAŻOWO-TECHNICZNA I DODATKOWE POMIESZCZENIA
Kondygnacja podziemna została zaprojektowana z myślą o maksymalnym komforcie użytkowym i technicznym.

  • garaż: 105,9 m² – przestrzeń dostosowana do dużych samochodów klasy premium
  • pochylnia: 34,7 m²
  • pomieszczenie techniczne: 14,6 m²
  • przedsionek: 4,0 m² | hol: 9,9 m²
  • pokój: 16,5 m² | łazienka: 3,4 m²
  • przygotowana instalacja pod obrotnicę samochodową (platformę obrotową), umożliwiającą wygodny obrót auta i wyjazd przodem

PARTER (134,1 m²) – STREFA DZIENNA Z WIDOKIEM NA PARK
Reprezentacyjna część domu, otwarta na zieleń i ogród.

  • salon: 80,0 m² – imponująca przestrzeń dzienna z dużymi przeszkleniami
  • kuchnia: 21,4 m² – funkcjonalna, spójna ze strefą dzienną
  • spiżarnia: 3,4 m²
  • toaleta (WC): 3,2 m²
  • garderoba: 4,5 m²
  • hol: 21,6 m²

PIĘTRO 1 (137,4 m²) – ROZBUDOWANA STREFA SYPIALNIANA
Najwyższa kondygnacja pełniąca funkcję komfortowej strefy nocnej.

  • studio: 23,9 m²
  • sypialnia: 17,0 m² | garderoba: 2,3 m² | łazienka: 4,4 m²
  • sypialnia: 17,9 m² | łazienka: 4,3 m²
  • sypialnia master: 29,5 m² | łazienka: 8,3 m² | garderoba: 6,1 m²
  • pralnia: 4,2 m² | schowek: 2,2 m²
  • korytarz: 10,5 m² | klatka schodowa: 6,8 m²

PIĘTRO 2 (121,1 m²) – KOMFORT PRYWATNY I REKREACJA
Strefa prywatna uzupełniona o przestrzeń rekreacyjną.

  • sypialnia: 17,7 m² | łazienka: 4,1 m²
  • sypialnia: 15,4 m² | łazienka: 2,5 m²
  • rekreacja: 71,3 m² – idealna przestrzeń na siłownię, kino domowe lub strefę hobby
  • klatka schodowa: 10,2 m²

LOKALIZACJA I OTOCZENIE
Dom położony jest w mieście, a jednocześnie bezpośrednio nad jeziorem i przy parku. W bezpośrednim otoczeniu znajdują się zadbane posesje Starego Wilanowa, a nieograniczone możliwości rekreacyjne zapewniają Rezerwat Morysin, Park Wilanowski, tereny spacerowe i plaże nad Wisłą, golf driving range, klub tenisowy oraz kryte baseny. Dojazd samochodem do szkół międzynarodowych zajmuje ok. 5–15 minut, podobnie jak do centrum handlowego z kinem Sadyba Best Mall. Tuż obok znajduje się również w pełni rozwinięta infrastruktura Miasteczka Wilanów. To lokalizacja, która realnie łączy prywatność, naturę i miejski komfort – bez kompromisów.

Plan
nieruchomości

547 m²

993 m²

8 pok.

2025

Lokalizacja

Podobne oferty

Formularz kontaktowy

MASZ DO NAS PYTANIA? WYPEŁNIJ PONIŻSZY FORMULARZ, A MY POSTARAMY SIĘ Z TOBĄ SKONTAKTOWAĆ NAJSZYBCIEJ JAK POTRAFIMY.