Warszawa, Praga-Północ, ul. Stefana Okrzei

4-Pok. Mieszkanie w Stanie Dew. | Port Praski

120.36 m²

4 pok.

2 łazien.

2019

1/7

Please, scroll down for English.

Przestronne i jasne mieszkanie w stanie deweloperskim o pow. 120,36 m2 położone na prestiżowym osiedlu Port Praski – 4 min. piechotą od kładki pieszo-rowerowej na Wiśle i z bezpośrednim dostępem do terenów rekreacyjnych.

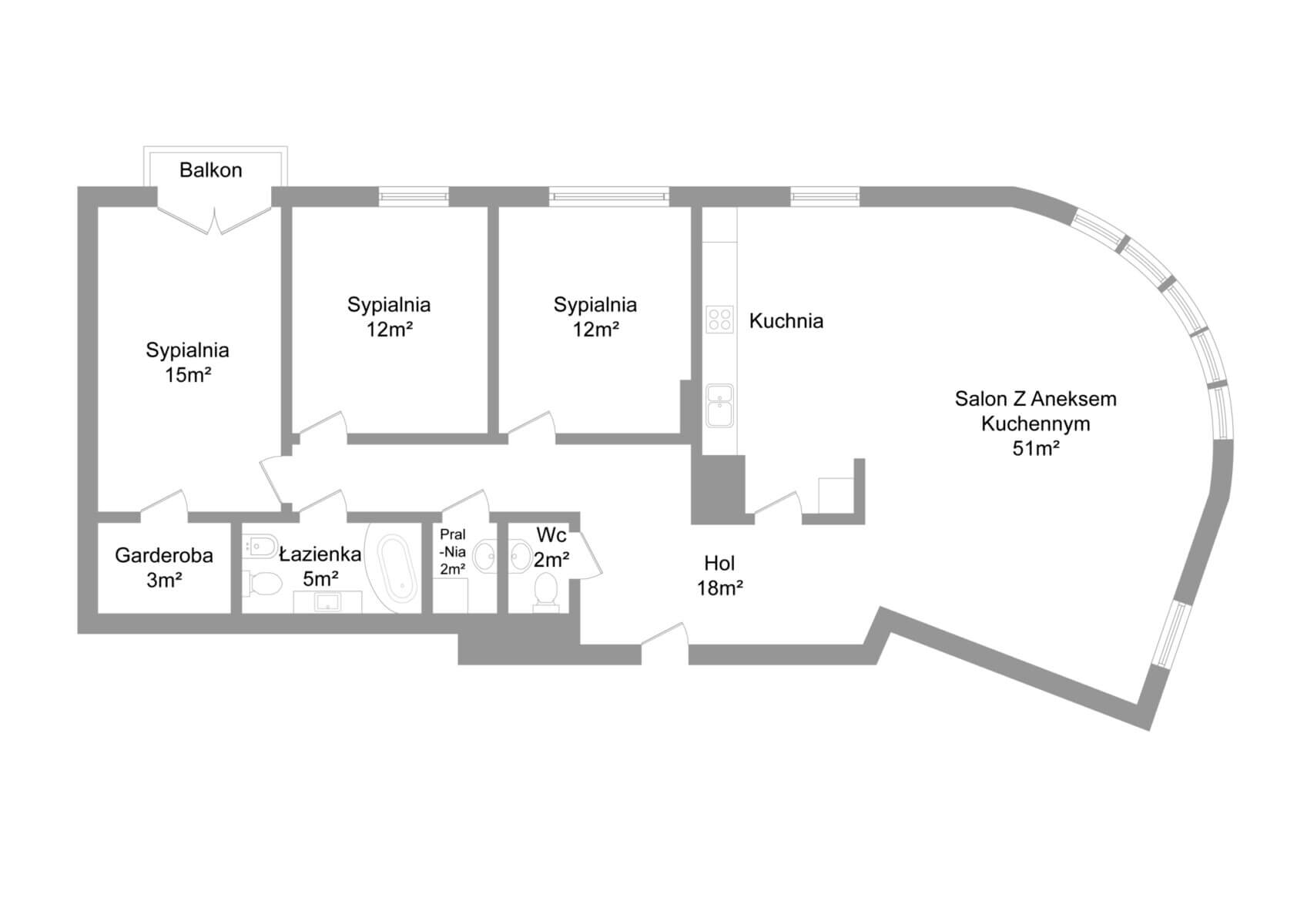
UKŁAD POMIESZCZEŃ

  • przestronny salon z aneksem kuchennym o pow. 50,58 m2 (część kuchenna z możliwością odseparowania od salonu),
  • sypialnia główna (pow. 15,45m2) z osobną garderobą (pow. 3,29 m2) – idealna jako prywatna strefa wypoczynku,
  • 2 dodatkowe sypialnie o pow. 12,34 m2 i 12,41 m2 – mogą pełnić funkcję pokoi dziecięcych, gościnnych lub gabinetów,
  • łazienka o pow. 4,73 m2,
  • osobna toaleta o pow. 1,57 m2 – wygodne rozwiązanie dla domowników i gości,
  • pralnia/pomieszczenie gospodarcze o pow. 1,63 m2 – zwiększające funkcjonalność mieszkania.

ATUTY NIERUCHOMOŚCI

  • stan deweloperski – możliwość wykończenia według własnego gustu,
  • duże przeszklenia – mieszkanie jest jasne i dobrze doświetlone,
  • widok na port i plac z Pomnikiem Kościuszkowskim – cisza w centrum miasta,
  • nowoczesna architektura i wysoki standard części wspólnych,
  • świetna lokalizacja – bliskość Wisły, terenów zielonych, ścieżek rowerowych, etc.,
  • doskonała komunikacja z centrum Warszawy – zarówno pieszo, rowerem, jak i transportem miejskim.

To idealna propozycja dla osób ceniących komfort, przestrzeń i prestiż, a ze względu na bliskość Centrum Nauki Kopernik, Starówki czy Centrum Praskiego Koneser miejsce to jest doskonałe również dla osób lubiących uczestniczyć w wydarzeniach kulturalnych i eventach miejskich.

LOKALIZACJA

Praga Północ charakteryzuje się doskonałą komunikacją (metro, tramwaje, autobusy), rozbudowaną infrastrukturą usługową i handlową, spełniając oczekiwania nawet najbardziej wymagających klientów. To wszystko w otoczeniu nadwiślańskich bulwarów, terenów zielonych, a w niedalekiej przyszłości – przystani portowych, pływających restauracji i kawiarni. Warszawa po tej stronie Wisły dynamicznie się zmienia, co czyni nieruchomości w tej lokalizacji doskonałą inwestycją na przyszłość.

Odległość z Portu Praskiego spacerem:
Ul.  Targowa – 5 minut
Ul.  Ząbkowska – 6 minut 
Kładka pieszo-rowerowa przez Wisłę – 4 minuty 
Stacja metra Dworzec Wileński – 11 minut 
Centrum Praskie Koneser – 15 minut 
Galeria Wileńska – 13 minut  
Lidl – 2 minuty
Biedronka – 10 minut 
Park Praski – 10 minut
Starówka – 10 minut

Port Praski to miejsce wymarzone dla osób ceniących śródmiejski styl życia, a jednocześnie spokojny wypoczynek w otoczeniu wody. Według dewelopera, stanie się on swoistym miastem w mieście. Znajdzie się tutaj wszystko, co można spotkać w prawdziwym mieście: budynki mieszkalne, apartamenty, lokale usługowo-handlowe, gastronomiczne, hotele, a także biurowce.

Stara Praga pełni funkcję mieszkalno-usługową. Znajdują się w niej apartamentowce, w których parter przeznaczony jest na lokale usługowe. Zabudowa Starej Pragi nawiązuje do historycznej architektury stolicy. Ulice tej dzielnicy będą prowadzić na portowy bulwar, który wraz z budową Doków – kolejnej części Portu Praskiego – stanie się wyjątkowym miejscem na mapie Warszawy.

Dodatkowo, potwierdzone już zostało, że ulica Okrzei zostanie gruntownie przebudowana. Prace, które rozpoczną się jeszcze tego lata, obejmą odcinek od Wybrzeża Szczecińskiego do ul. Jagiellońskiej. Jak podaje Zarząd Dróg Miejskich i TVP Warszawa, ulica zmieni się w zieloną przestrzeń z priorytetem dla pieszych i rowerzystów. Będzie to część projektu „Nowe Centrum Warszawy” realizowanego na prawym brzegu Wisły.

CENA

Cena mieszkania to 1.890.000 zł, dodatkowo płatne miejsce parkingowe w garażu znajdującym się pod budynkiem w cenie 100.000 zł.

Plan
nieruchomości

120.36 m²

4 pok.

2 łazien.

2019

1/7

Lokalizacja

Podobne oferty

Formularz kontaktowy

MASZ DO NAS PYTANIA? WYPEŁNIJ PONIŻSZY FORMULARZ, A MY POSTARAMY SIĘ Z TOBĄ SKONTAKTOWAĆ NAJSZYBCIEJ JAK POTRAFIMY.