Warszawa, Śródmieście

Lokal użytkowy idealny na biuro lub klinikę

202.49 m²

1890

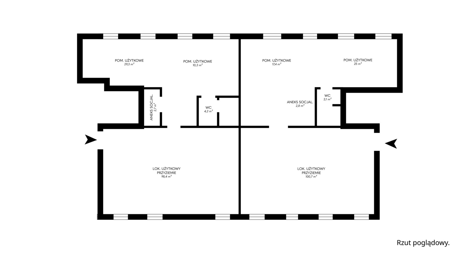
Lokal użytkowy 203 m2 z przeznaczeniem na usługi ||  7 pomieszczeń  ||  2 toalety  ||  Aneks kuchenny   ||  teren ogrodzony z ochroną 24h  ||  wejście do lokalu od dziedzińca

Zabytkowa Kamienica w pożądanej lokalizacji przy ul. Hożej powstała w 1890 roku.  Kompleksowe prace rewitalizacyjne prowadzone tam przez spółkę deweloperską przywróciły jej stylowy charakter i pierwotny blask. Podziemny parking, wysokie stropy zabytkowe stylizowane klatki  i nowoczesna winda to udogodnienia, które stanowią
o wysokim standardzie nieruchomości.

Na ternie wspólnym przed frontem kamienicy znajduje się bogaty ogród pełen zieleni do użytku mieszkańców. 

PODANA CENA JEST CENĄ NETTO.

Na sprzedaż  oferujemy lokal usługowy w przyziemiu. Wysokość lokalu do 3,5 m.

Wnętrze oferuje szerokie możliwości adaptacyjne.

Dodatkowym atutem dla nowego inwestora jest fakt, że nieruchomość składa się z dwóch lokali, są dwie księgi wieczyste. I docelowo – alternatywnie go można wynająć jako dwa niezależne lokale usługowe, co zdecydowanie uatrakcyjnia nieruchomość pod kątem inwestycyjnym – częściowego podnajmu lub przyszłej sprzedaży – można zbyć „połowę”, sprzedać całość jednemu inwestorowi lub dwom inwestorom.

Jest to idealny produkt inwestycyjny pod działalność dającą prywatność czy butikowy charakter. 

Oferta OFF MARKET do szybkiej sprzedaży aktualnie bez najemcy. 
Zapraszam na prezentację tej wyjątkowej nieruchomości. 

Plan
nieruchomości

202.49 m²

1890

Lokalizacja

Podobne oferty

Formularz kontaktowy

MASZ DO NAS PYTANIA? WYPEŁNIJ PONIŻSZY FORMULARZ, A MY POSTARAMY SIĘ Z TOBĄ SKONTAKTOWAĆ NAJSZYBCIEJ JAK POTRAFIMY.