Warszawa, Mokotów

Lokal w Eleganckiej Kamienicy, TOP Lokalizacja

240.46 m²

Lokal biurowo-usługowy o szerokich możliwościach aranżacyjnych, mieszczący się w zrewitalizowanej, modernistycznej kamienicy przy ul. Chocimskiej. Piękne, reprezentacyjne lobby z całodobową recepcją i ochroną podkreśla luksusowy i elegancki charakter inwestycji.  

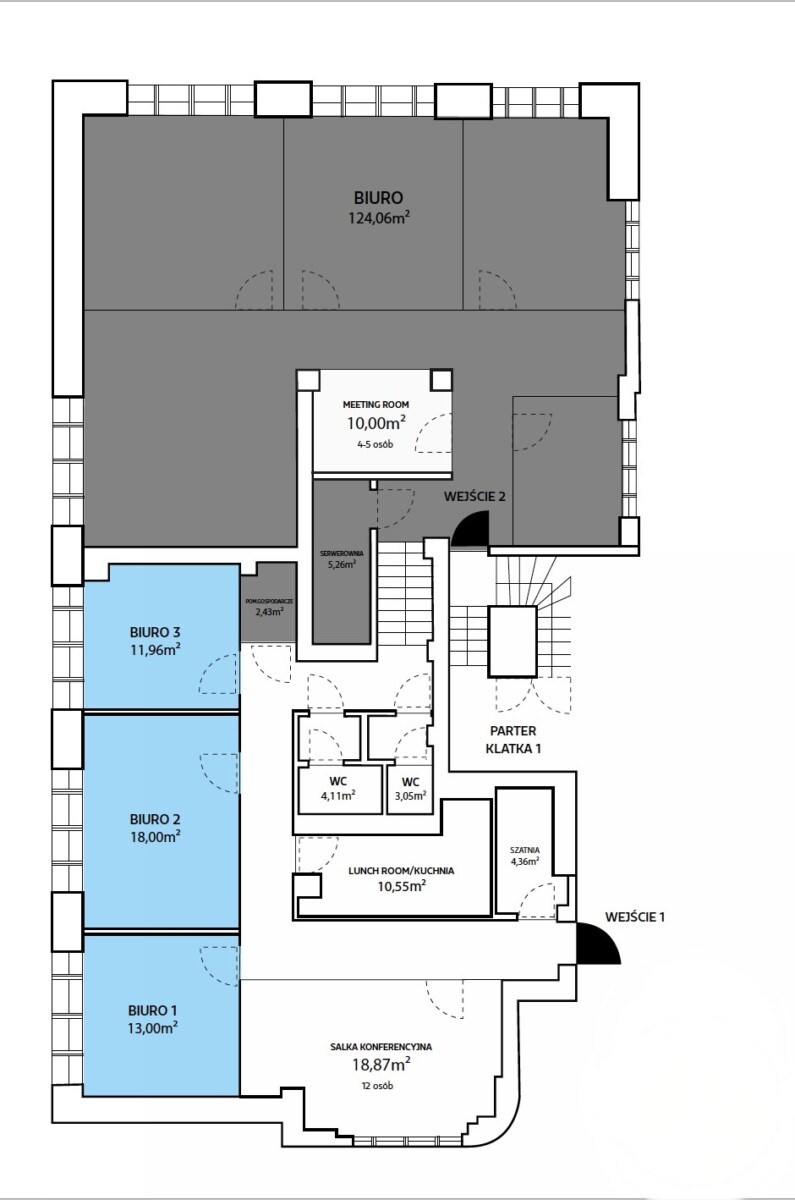
LOKAL

Na powierzchnię całkowitą 240,46 m2 składają się m.in:
– powierzchnia biurowa typu open-space (124,06 m2), obecnie podzielona przeszkleniami tworzącymi 5 pomieszczeń zamkniętych i jedną przestrzeń otwartą
– 3 niezależne pokoje biurowe (11,96 – 18,00 m2),
– 2 salki konferencyjne (18,87 i 10,00 m2),
– kuchnia z zabudową (10,55 m2),
– 2x WC,
– inne pomieszczenia – serwerownia, szatnia, gospodarcze,

Część biurowa wyraźnie podzielona na 2 strefy z dwoma osobnymi wejściami. 
Lokal zadbany, obecnie częściowo wynajmowany.
Istnieje możliwość zmiany przeznaczenia lokalu na mieszkalny oraz dodatkowego zakupu archiwum (71,05 m2) znajdującego się po przeciwnej stronie lobby, funkcjonującego obecnie jako niezależna przestrzeń biurowa z kuchnią i WC.

BUDYNEK

Modernistyczny budynek z lat 30-tych gruntownie zrewitalizowany przez dewelopera Myoni Group, specjalizującego się m.in. w odnowie pięknych, przedwojennych kamienic. Oprócz przedstawionego lokalu biurowo-usługowego, w tej kameralnej inwestycji znajduje się także 20 apartamentów o wysokim standardzie. Do dyspozycji mieszkańców oddany został wewnętrzny dziedziniec, zagospodarowany zadbaną zielenią oraz elementami małej architektury. W budynku znajduje się także recepcja, ochrona oraz eleganckie pomieszczenie lobby. Ze względu na mieszczącą się w budynku Rezydencję Ambasadora Grecji, poziom bezpieczeństwa jest wyjątkowo wysoki.

LOKALIZACJA

Kamienica przy ul. Chocimskiej zlokalizowana jest w najbardziej prestiżowej części Starego Mokotowa, w bliskiej odległości od placu Unii Lubelskiej. Usytuowany na Skarpie Warszawskiej, sąsiaduje z Parkiem Morskie Oko oraz Łazienkami Królewskimi, a także placówkami dyplomatycznymi w otoczeniu eleganckiej, przedwojennej zabudowy willowej. Bliskość ulicy Puławskiej zapewnia łatwość dojazdu z innych części miasta oraz przemieszczania się komunikacją miejską.

Plan
nieruchomości

240.46 m²

Lokalizacja

Podobne oferty

Formularz kontaktowy

MASZ DO NAS PYTANIA? WYPEŁNIJ PONIŻSZY FORMULARZ, A MY POSTARAMY SIĘ Z TOBĄ SKONTAKTOWAĆ NAJSZYBCIEJ JAK POTRAFIMY.