Na sprzedaż nowa, wolnostojąca willa położona w jednej z najbardziej zielonych i prestiżowych części Warszawy – Radość. Nieruchomość usytuowana jest na dużej działce o powierzchni 1050 m², porośniętej wysokimi, dorosłymi drzewami, które zapewniają ciszę, prywatność i wyjątkowy charakter miejsca. Dom został zaprojektowany w formie klasycznej, symetrycznej willi inspirowanej stylem włoskim, z wyraźnie zaznaczoną osią wejścia, dekoracyjnymi gzymsami oraz stolarką ze szprosami. To propozycja dla osób, które szukają ponadczasowej architektury, wysokiej jakości wykonania i komfortu życia w otoczeniu zieleni, z bardzo dobrym dojazdem do pozostałych części miasta.
ROZKŁAD POMIESZCZEŃ I WNĘTRZA
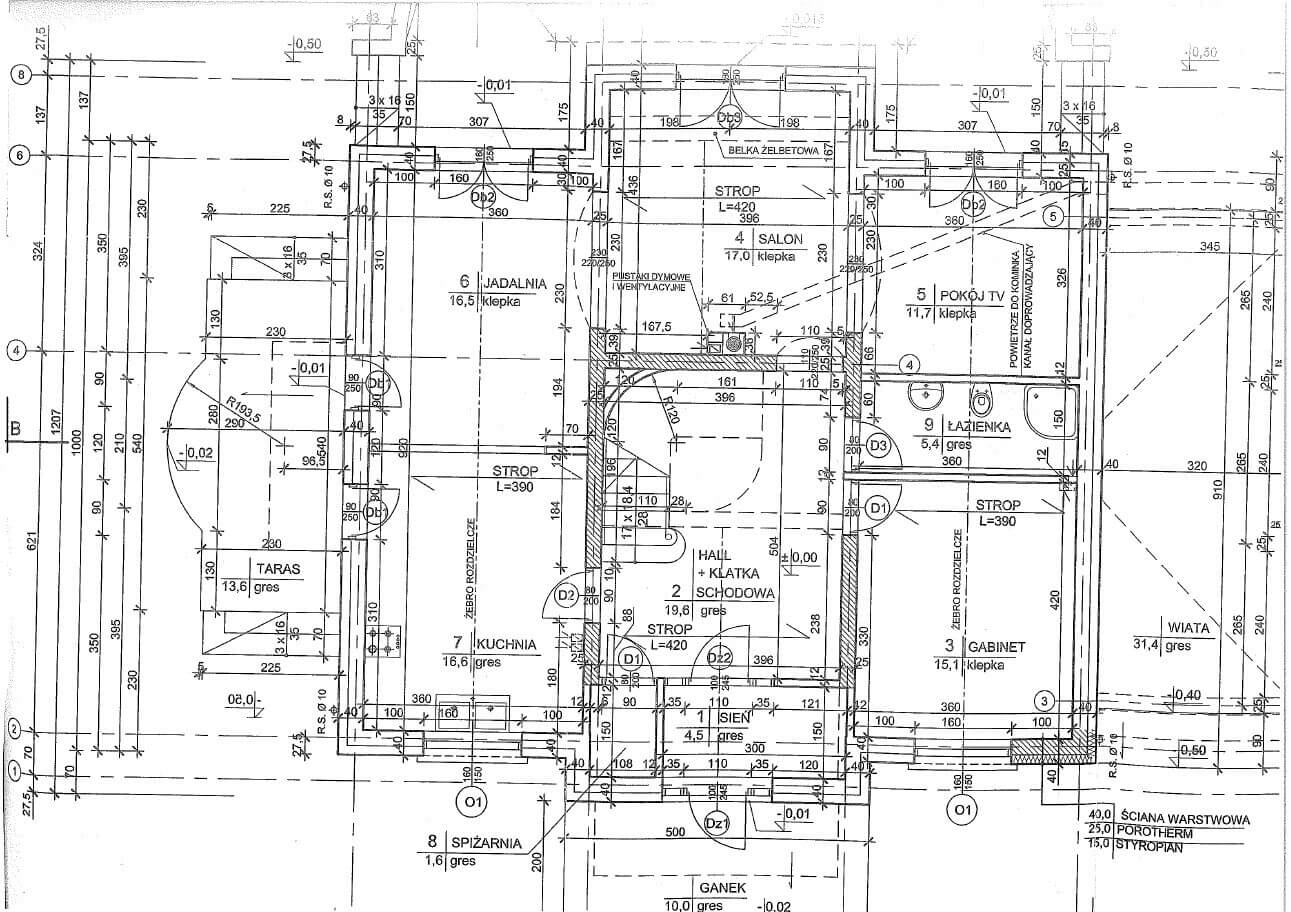
Parter – 108,0 m²
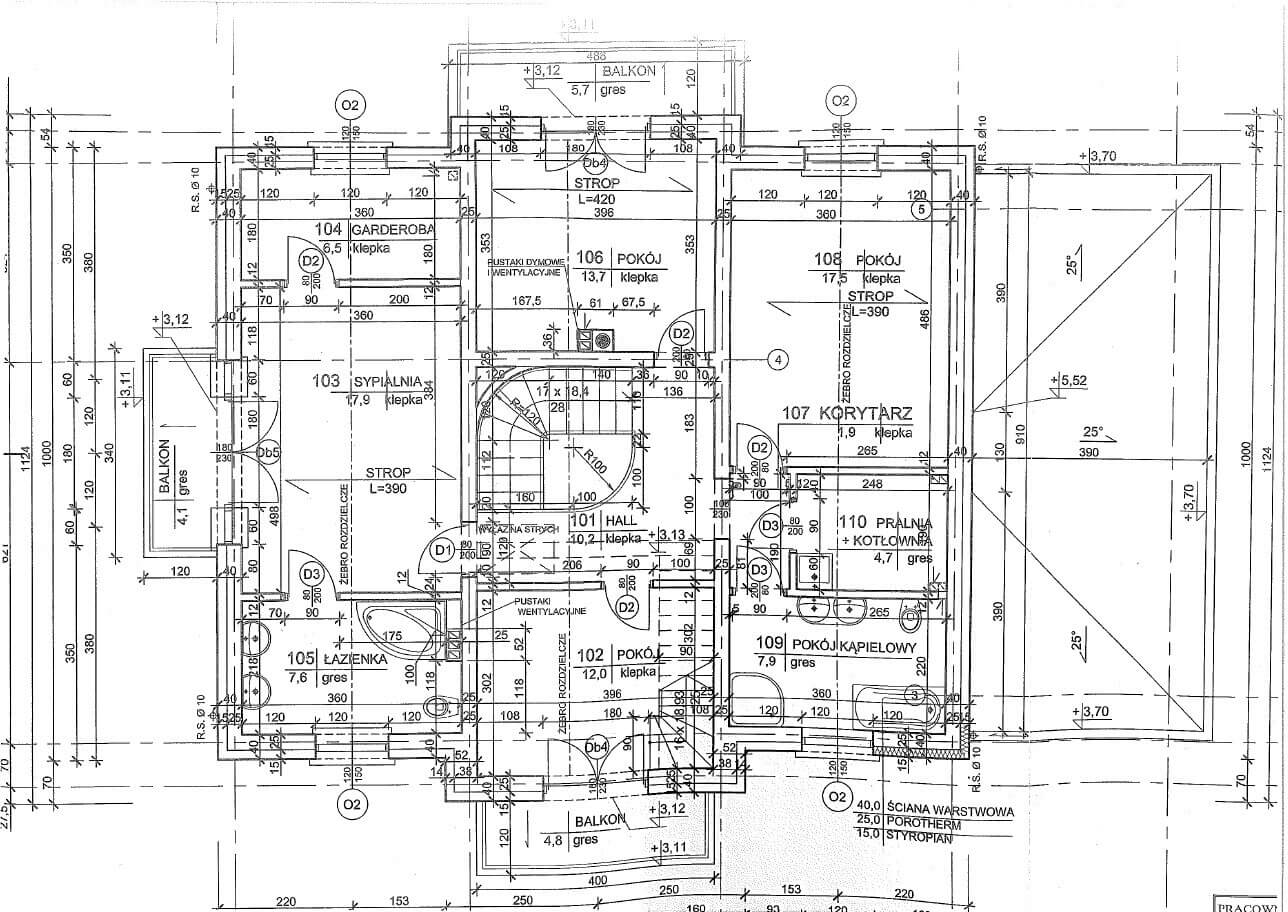
Piętro – 99,9 m²
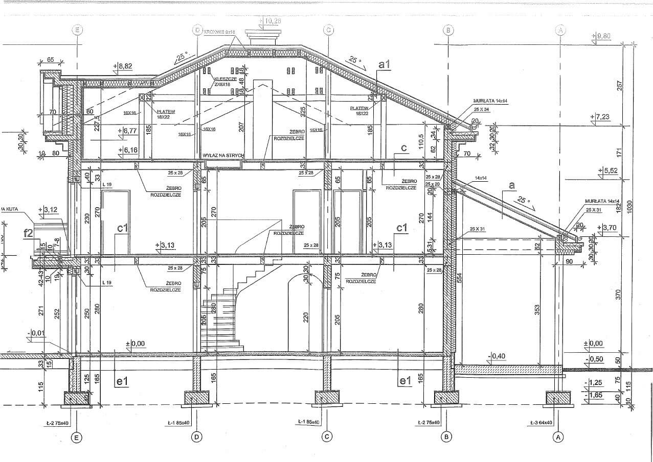
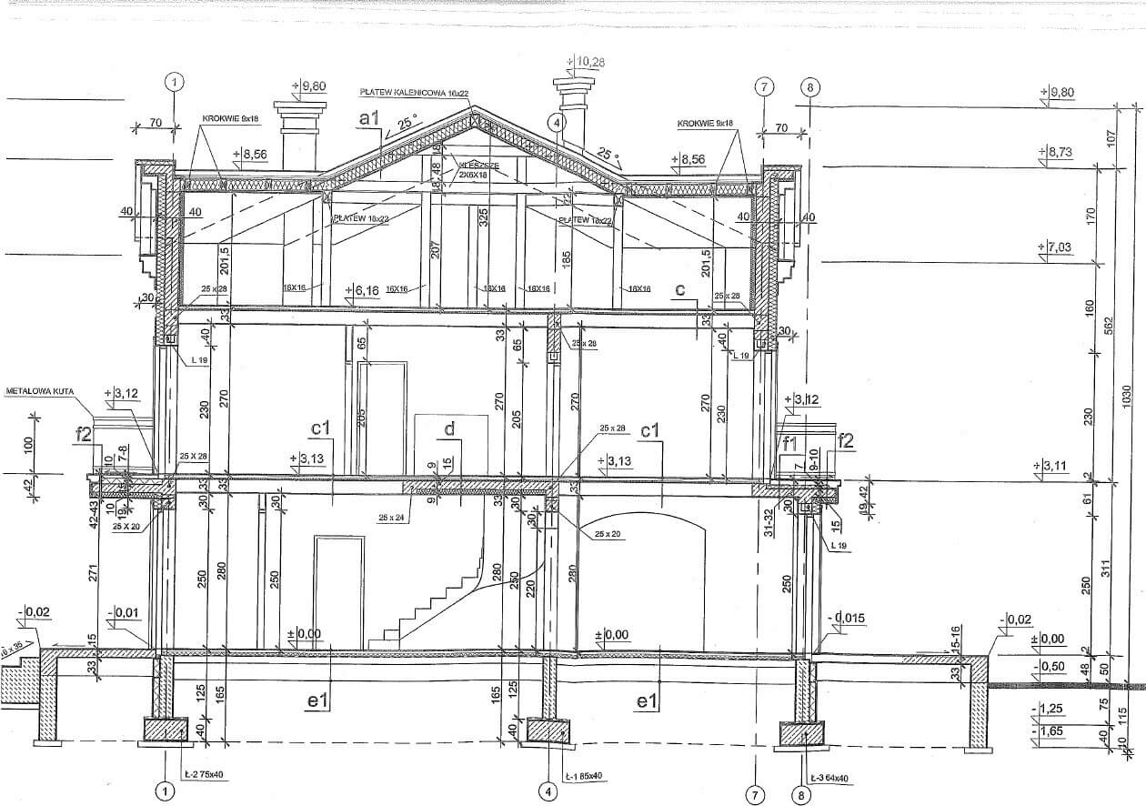
Poddasze
Dom posiada duże poddasze , nieujęte w powierzchni użytkowej, do którego można doprowadzić schody zabiegowe. Przestrzeń ta stanowi realną rezerwę metrażu i daje możliwość przyszłej adaptacji na dodatkowe pomieszczenia – gabinet, strefę rekreacyjną, pracownię lub przestrzeń hobby.
GARAŻ
Przy budynku znajduje się garaż w formie wiaty o powierzchni 31,4 m², zaprojektowany jako docelowo zamykany. Powierzchnia ta nie jest wliczona do powierzchni użytkowej domu.
STANDARD I TECHNOLOGIA
Dom zbudowany z betonu komórkowego Ytong o grubości 48 cm, co zapewnia bardzo dobrą izolację cieplną i akustyczną.
Dom sprzedawany w standardzie deweloperskim zamkniętym, z pełnymi instalacjami, gotowy do wykończenia według indywidualnego projektu.
LOKALIZACJA I OTOCZENIE
Radość to willowa część Warszawy ceniona za zieleń, ciszę i niską, elegancką zabudowę. Okolica oferuje spokój i prywatność, a jednocześnie bardzo szybki i wygodny wyjazd na Południową Obwodnicę Warszawy, która pozostaje niesłyszalna. To lokalizacja wybierana przez osoby świadomie poszukujące jakości życia, przestrzeni i kontaktu z naturą, bez rezygnowania z miejskiej infrastruktury.
MASZ DO NAS PYTANIA? WYPEŁNIJ PONIŻSZY FORMULARZ, A MY POSTARAMY SIĘ Z TOBĄ SKONTAKTOWAĆ NAJSZYBCIEJ JAK POTRAFIMY.
Zgłoś poszukiwanie
Zgłoś nieruchomość
Skontaktuj się z nami