Warszawa, Mokotów

Lokal w Eleganckiej Kamienicy, TOP Lokalizacja

311.51 m²

Lokal biurowo-usługowy o szerokich możliwościach aranżacyjnych, mieszczący się w zrewitalizowanej, modernistycznej kamienicy przy ul. Chocimskiej. Piękne, reprezentacyjne lobby z całodobową recepcją i ochroną podkreśla luksusowy i elegancki charakter inwestycji.  

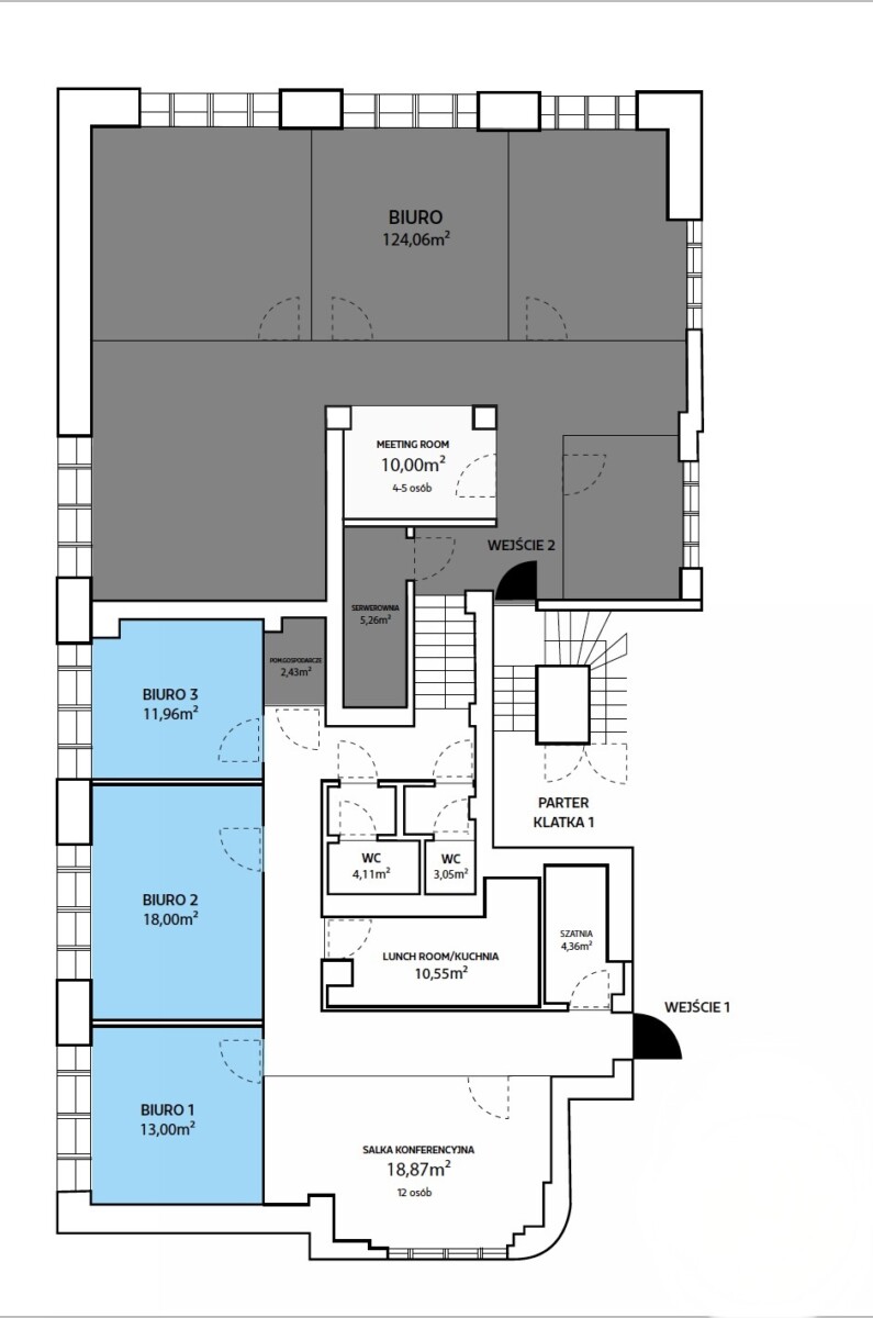
LOKAL

Na powierzchnię całkowitą 311,51 m2 składają się m.in:
– powierzchnia biurowa typu open-space (124,06 m2), obecnie podzielona przeszkleniami tworzącymi 5 pomieszczeń zamkniętych i jedną przestrzeń otwartą
– 3 niezależne pokoje biurowe (11,96 – 18,00 m2),
– 2 salki konferencyjne (18,87 i 10,00 m2),
– kuchnia z zabudową (10,55 m2),
– 2x WC,
– inne pomieszczenia – serwerownia, szatnia, gospodarcze,
– osobne archiwum (71,05 m2) znajdujące się po przeciwnej stronie lobby, funkcjonujące obecnie jako niezależna przestrzeń biurowa z kuchnią i WC.

Część biurowa wyraźnie podzielona na 2 strefy z dwoma osobnymi wejściami. 
Lokal zadbany, obecnie częściowo wynajmowany.
Możliwość podziału pomieszczeń i zakupu bez archiwum oraz zmiany przeznaczenia lokalu na mieszkalny.

BUDYNEK

Modernistyczny budynek z lat 30-tych gruntownie zrewitalizowany przez dewelopera Myoni Group, specjalizującego się m.in. w odnowie pięknych, przedwojennych kamienic. Oprócz przedstawionego lokalu biurowo-usługowego, w tej kameralnej inwestycji znajduje się także 20 apartamentów o wysokim standardzie. Do dyspozycji mieszkańców oddany został wewnętrzny dziedziniec, zagospodarowany zadbaną zielenią oraz elementami małej architektury. W budynku znajduje się także recepcja, ochrona oraz eleganckie pomieszczenie lobby. Ze względu na mieszczącą się w budynku Rezydencję Ambasadora Grecji, poziom bezpieczeństwa jest wyjątkowo wysoki.

LOKALIZACJA

Kamienica przy ul. Chocimskiej zlokalizowana jest w najbardziej prestiżowej części Starego Mokotowa, w bliskiej odległości od placu Unii Lubelskiej. Usytuowany na Skarpie Warszawskiej, sąsiaduje z Parkiem Morskie Oko oraz Łazienkami Królewskimi, a także placówkami dyplomatycznymi w otoczeniu eleganckiej, przedwojennej zabudowy willowej. Bliskość ulicy Puławskiej zapewnia łatwość dojazdu z innych części miasta oraz przemieszczania się komunikacją miejską.

Plan
nieruchomości

311.51 m²

Lokalizacja

Podobne oferty

Formularz kontaktowy

MASZ DO NAS PYTANIA? WYPEŁNIJ PONIŻSZY FORMULARZ, A MY POSTARAMY SIĘ Z TOBĄ SKONTAKTOWAĆ NAJSZYBCIEJ JAK POTRAFIMY.