Konstancin-Jeziorna

Luksusowa rezydencja na skarpie wśród starodrzewia

439 m²

1533 m²

7 pok.

2010

Zlokalizowana w jednej z najbardziej poszukiwanych części Konstancina-Jeziorny, ta nowoczesna rezydencja w stylu minimalistycznego Bauhausu to idealna propozycja dla osób ceniących spokój, naturę oraz tradycję uzdrowiskowego charakteru tej elitarnej miejscowości. Usytuowana na skarpie, w pełni prywatna i otoczona majestatycznym starodrzewiem, oferuje niepowtarzalne widoki, przestrzeń i wyjątkowy komfort życia.
Architektura i przestrzeń
Dom wyróżnia się ponadczasową architekturą – geometryczną, klarowną formą wpisującą się harmonijnie w krajobraz. Całkowita powierzchnia użytkowa wynosi 439 m², a dodatkowo do dyspozycji mieszkańców są aż 4 tarasy o łącznej powierzchni 299 m², w tym spektakularny taras dachowy (144 m²) z możliwością aranżacji jako strefa wellness lub sky garden.

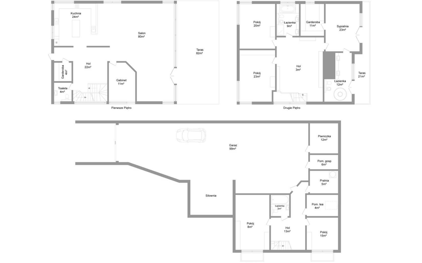
Parter – otwarta przestrzeń i widok, który zachwyca:

  • Reprezentacyjny hol wejściowy z ukrytą garderobą
  • Otwarty salonik (21 m²) przy schodach wyeksponowanych na tle 6-metrowej ściany przeszkleń
  • Główna część dzienna (80 m²) – przestrzeń idealna do wypoczynku, spotkań i celebrowania życia
  • Taras o pow. ponad 80 m² – z widokiem na ogród i zieleń, idealny na poranne espresso i wieczorne przyjęcia
  • Otwarta kuchnia (24 m²) z dużą wyspą – w pełni wyposażona w sprzęt Miele, wykończona spiekami kwarcowymi i drewnianą zabudową
  • Gabinet do pracy z panoramiczną ścianą – oknem
  • WC dla gości.

Piętro – prywatna oaza komfortu:

  • Hol-salonik z biblioteką (35 m²)
  • Główna sypialnia typu master bedroom (23 m²) z prywatnym pokojem kąpielowym (12 m²), garderobą (11 m²) i wyjściem na prywatny taras (21 m²)
  • Dwie sypialnie (23 m² i 21 m²) z dużymi, narożnymi przeszkleniami
  • Komfortowa łazienka z oknem, wanną i prysznicem

Poziom -1 – strefa gości, relaksu i funkcjonalności:

  • Dwie gościnne sypialnie z oknami
  • Łazienka z kabiną prysznicową
  • Stylowa duża piwniczka na wino
  • Nowoczesna siłownia
  • Pomieszczenia techniczne, gospodarcze
  • Garaż mieszczący 3–4 samochody /rzuty w załączeniu/ + dodatkowe 2 miejsca zewnętrzne na terenie na podjeździe


Wysoki standard wykończenia | Zrównoważona elegancja

Dom zbudowany w technologii żelbetowej (ściany 40 cm), ocieplony naturalną wełną mineralną. Fasada z monolitycznego betonu i syberyjskiego modrzewia idealnie współgra z naturalnym otoczeniem. Wysokiej klasy aluminiowe, trójszybowe okna panoramiczne, system klimatyzacji, ogrzewanie podłogowe, zintegrowany system audio, regulowane oświetlenie – wszystko zaprojektowane z myślą o maksymalnym komforcie użytkownika.
Kuchnia wyposażona w sprzęty klasy premium marki Miele (lodówka, chłodziarka na wino, płyta indukcyjna, zmywarka, piekarnik). Do wykończenia użyto naturalnych materiałów najwyższej jakości – litej deski podłogowej, palisandrowych fornirów, egzotycznego drewna, włoskiej ceramiki i kamienia naturalnego. Wszystkie łazienki przeszły gruntowną renowację.
Dom przeszedł pełną modernizację w latach 2019–2022.

Technologie i udogodnienia:

  • Panele solarne wspierające efektywność energetyczną
  • Automatyczne nawadnianie ogrodu
  • Wszystkie media miejskie: gaz, woda, kanalizacja
  • Możliwość sterowania oświetleniem

Lokalizacja premium | Konstancin-Jeziorna – prestiżowa enklawa pod Warszawą
Zaledwie 25 minut od centrum Warszawy, w bezpośredniej bliskości Lasu Chojnowskiego, Parku Zdrojowego i międzynarodowych szkół, w tym renomowanej Szkoły Amerykańskiej (ASW). Miejsce o ponad 100-letniej historii jako uzdrowisko i enklawa dla osób ceniących wysoką jakość życia.

To coś więcej niż dom – to styl życia.
Jeśli szukasz miejsca, które łączy współczesną estetykę z luksusem, prywatnością i doskonałą lokalizacją – ta rezydencja spełni oczekiwania najbardziej wymagających.
 

Plan
nieruchomości

439 m²

1533 m²

7 pok.

2010

Formularz kontaktowy

MASZ DO NAS PYTANIA? WYPEŁNIJ PONIŻSZY FORMULARZ, A MY POSTARAMY SIĘ Z TOBĄ SKONTAKTOWAĆ NAJSZYBCIEJ JAK POTRAFIMY.